Продается 2 комнатная квартира ПСО в ЖК "Esentai" (Полноценная)
Район: Аю-Гранд
ЖК: "Esentai"
СК: "Артвин"
Этаж: 2/12
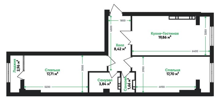
Площадь: 72 м2 (Не угловая)
Документы: ДДУ (Проходит через ГРС)
Отопление: Центральное
Цена: 80 000$ БЕЗ ТОРГА!!!
Окна выходят на запад и восток, раздельный сан узел (Одну можно сделать гардеробной),




















